Park Road
Situated on the beautiful Park Road, this exciting new development enjoys a prime location close to local schools, parks, and green spaces - making it an ideal setting for families.
Currently in the planning and development stage, this site is being carefully designed in collaboration with our experienced team of consultants to create a thoughtfully planned and attractive living environment.
With a strong focus on quality design, functionality, and lifestyle, this upcoming development will offer a fantastic opportunity to live in one of the areas most desirable locations.
Stay tuned as we bring this vision to life.
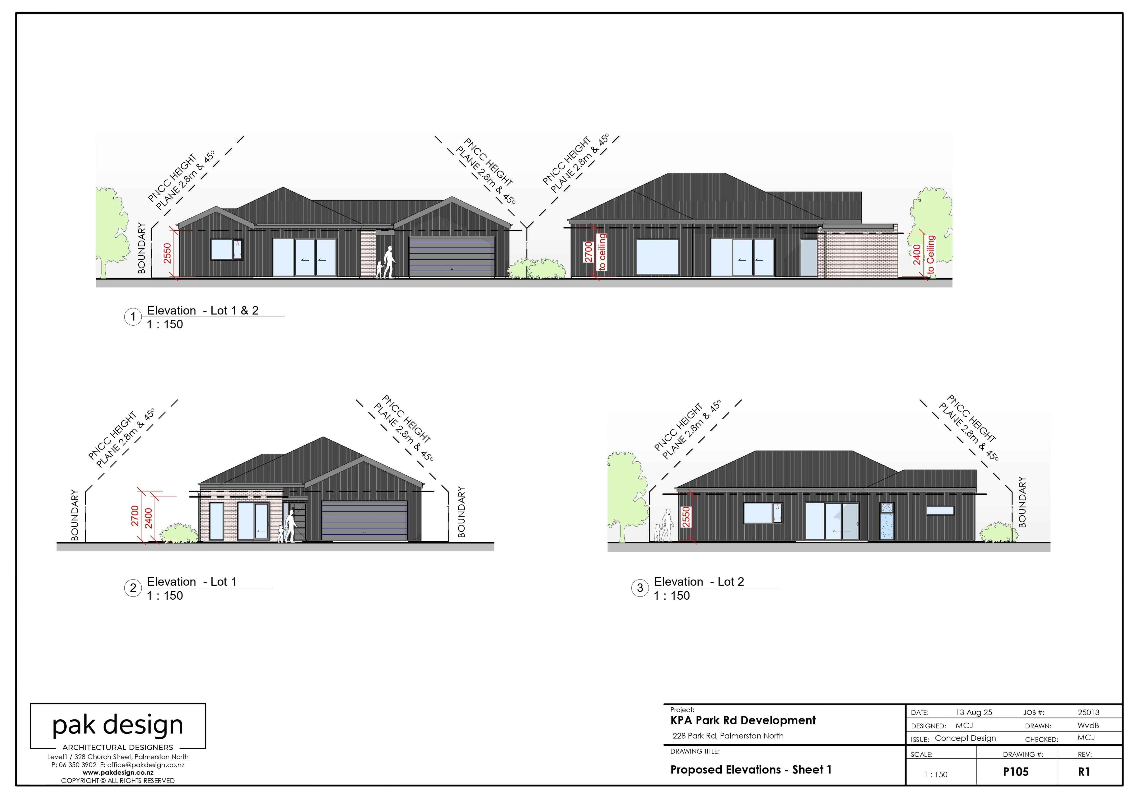
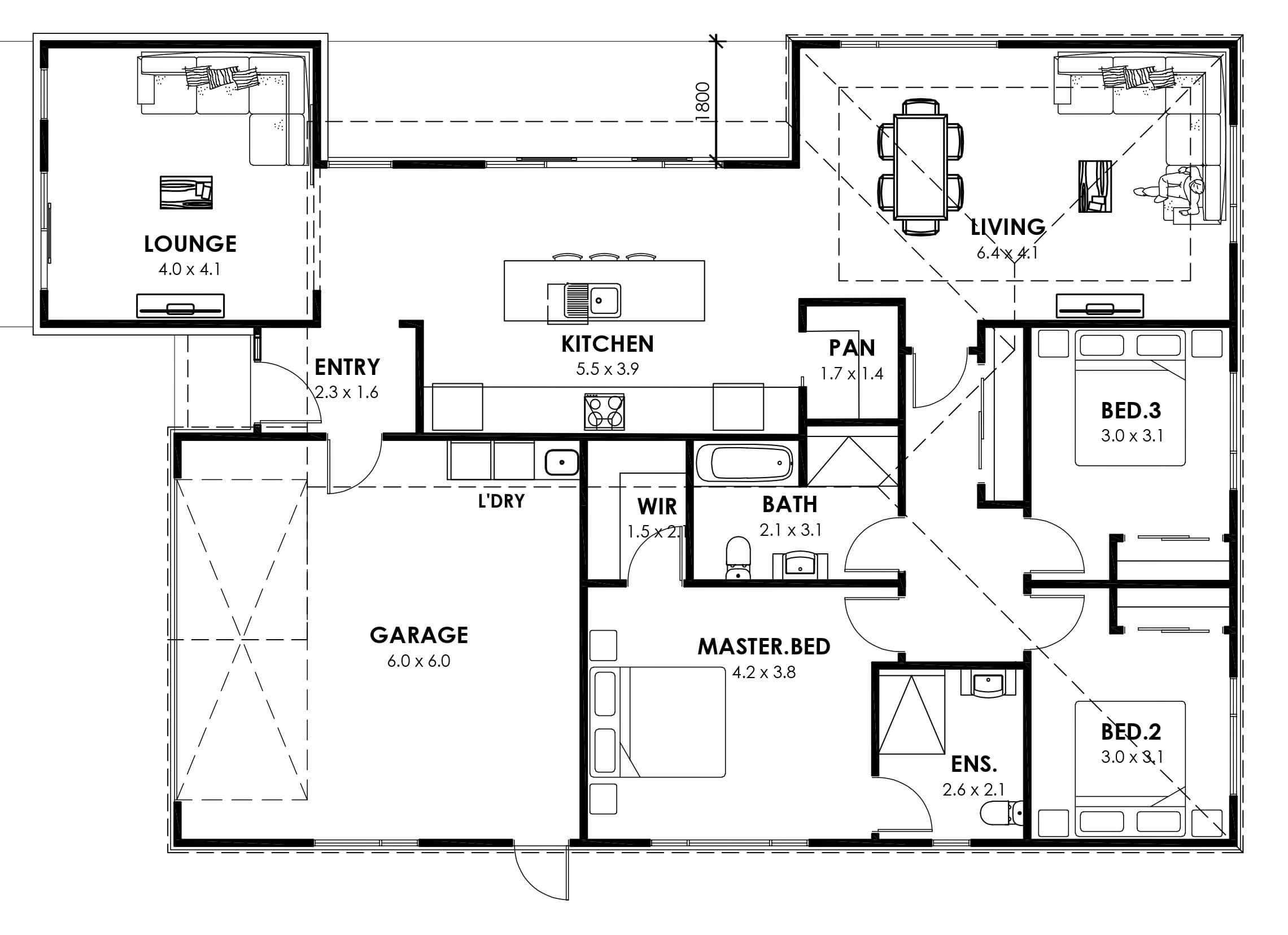
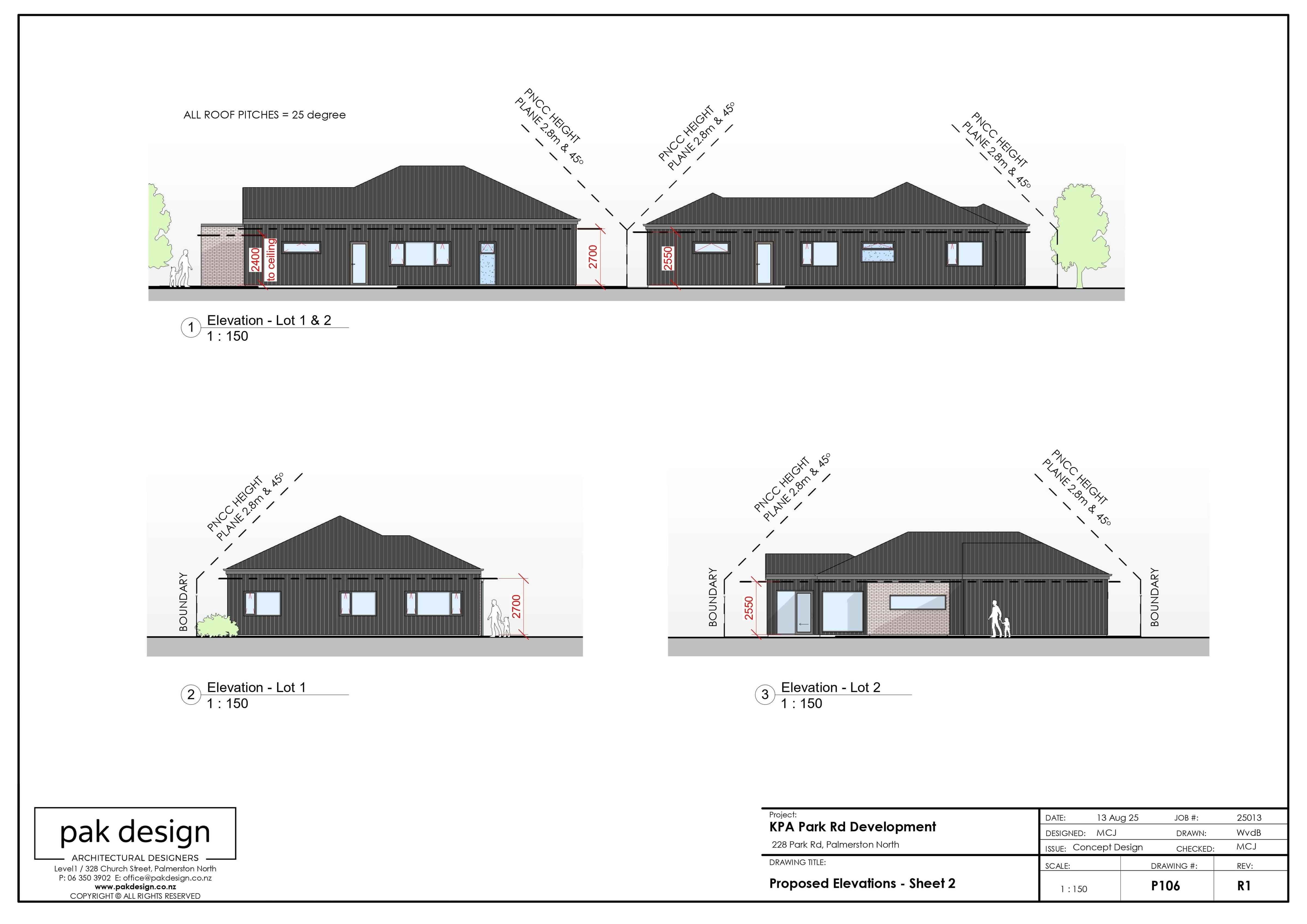
Lot 1
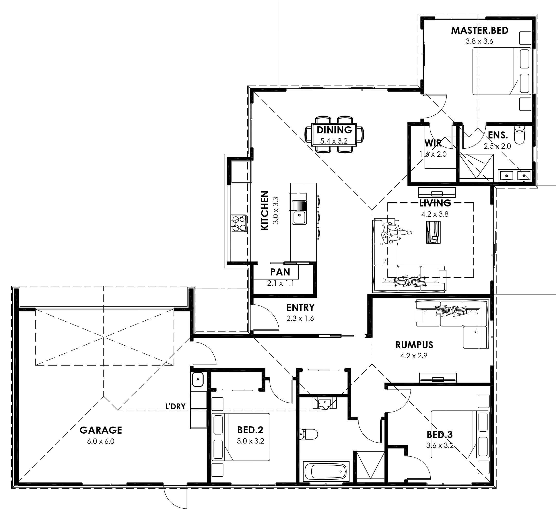
Lot 2
