Tamakuku Terrace
We purchased this section in the new PNCC subdivision in 2022 and after getting distracted with other big projects, we're finally getting onto building the house!
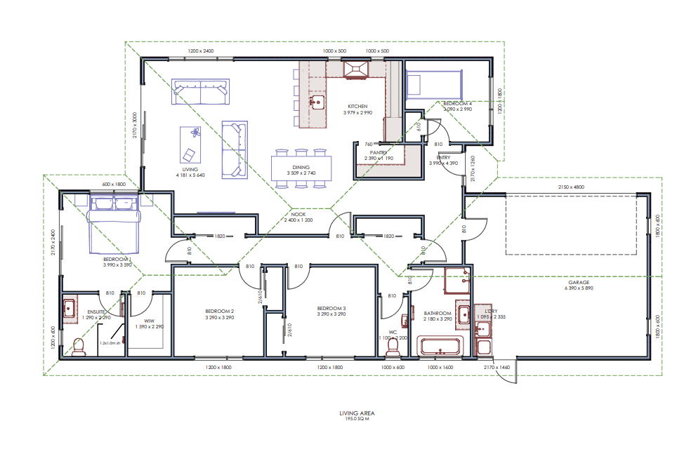
This one is going to be a mid-high spec home targeting families - Kelvin Grove has a lot to offer with great schools and parks nearby.
Check out what's happening on site...
